Утепление совмещенных крыш
-
-

Совмещенная крыша
(для просмотра в увеличенном формате нажмите на изображение)

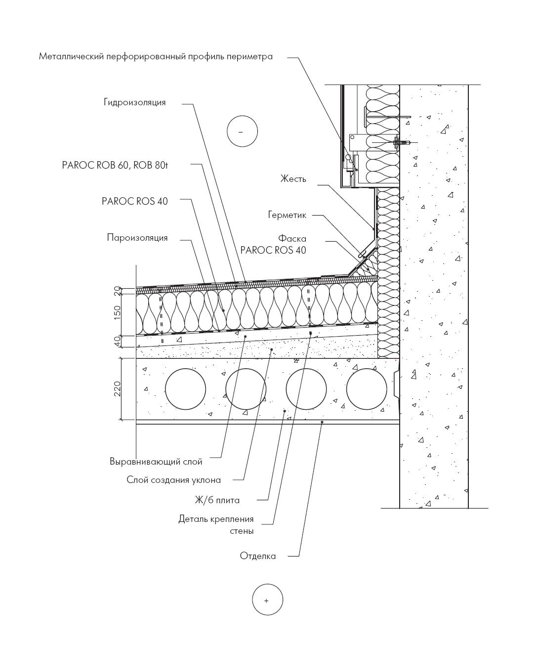
Деталь присоединения совмещённой крыши к парапету
(для просмотра в увеличенном формате нажмите на изображение)

Устройство совмещенной вентилируемой крыши возле парапета
(для просмотра в увеличенном формате нажмите на изображение)

Деталь утепления совмещенной крыши возле дефлектора
(для просмотра в увеличенном формате нажмите на изображение)

Деталь утепления совмещенной крыши возле стояков
(для просмотра в увеличенном формате нажмите на изображение)

Деталь утепления совмещенной крыши возле воронки
(для просмотра в увеличенном формате нажмите на изображение)

Совмещенная вентилируемая крыша
(для просмотра в увеличенном формате нажмите на изображение)

Деталь утепления совмещенной вентилируемой крыши возле дефлектора
(для просмотра в увеличенном формате нажмите на изображение)

Деталь утепления совмещенной вентилируемой крыши возле стыка ж/б плит с разными уклонами
(для просмотра в увеличенном формате нажмите на изображение)

Деталь эксплуатируемой совмещенной крыши
(для просмотра в увеличенном формате нажмите на изображение)

Деталь эксплуатируемой совмещенной крыши с учетом движения транспорта
(для просмотра в увеличенном формате нажмите на изображение)

Деталь совмещенной крыши при реновации зданий
(для просмотра в увеличенном формате нажмите на изображение)

Деталь утепления совмещенной крыши системы лёгких конструкций
(для просмотра в увеличенном формате нажмите на изображение)

Деталь утепления совмещенной крыши системы лёгких конструкций
(для просмотра в увеличенном формате нажмите на изображение)

Деталь утепления совмещенной крыши системы лёгких конструкций с наплавленным битумным рулонным покрытием
(для просмотра в увеличенном формате нажмите на изображение)

Проложение пешеходной дорожки на совмещенной крыше системы лёгких конструкций с наплавленным битумным рулонным покрытием
(для просмотра в увеличенном формате нажмите на изображение)

Деталь утепления совмещенной крыши системы лёгких конструкций с наплавленным битумным рулонным покрытием возле дефлектора
(для просмотра в увеличенном формате нажмите на изображение)

Деталь утепления совмещенной крыши системы лёгких конструкций с наплавленным битумным рулонным покрытием возле стыка разных наклонов
(для просмотра в увеличенном формате нажмите на изображение)